- 物件情報No.201
- 価格(税込)300万円
- 条件建物(土地込み)
- 用途/構造木造
- 面積宅地面積198.34㎡/延床面積177.34㎡
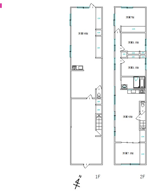
- 間取り店舗+住宅(4LDK)2階建
- 建築時期1975年
- 駐車場なし
- 暖房/冷房灯油/有(3台)
- 台所/給湯/風呂LPガス/灯油/灯油
- トイレ公共下水道
- 備考
- 所在地
- 近隣情報
認定こども園 徒歩8分/車2分 小学校 徒歩7分/車2分 中学校 徒歩12分/車2分 高校 徒歩17分/車3分 病院 徒歩4分/車1分 コンビニ 徒歩5分/車1分 スーパー 徒歩2分/車1分
